Espace propriétaire
fr
Se connecter
Se connecter

Votre recherche

Coup de coeur
Le Gosier (97190)

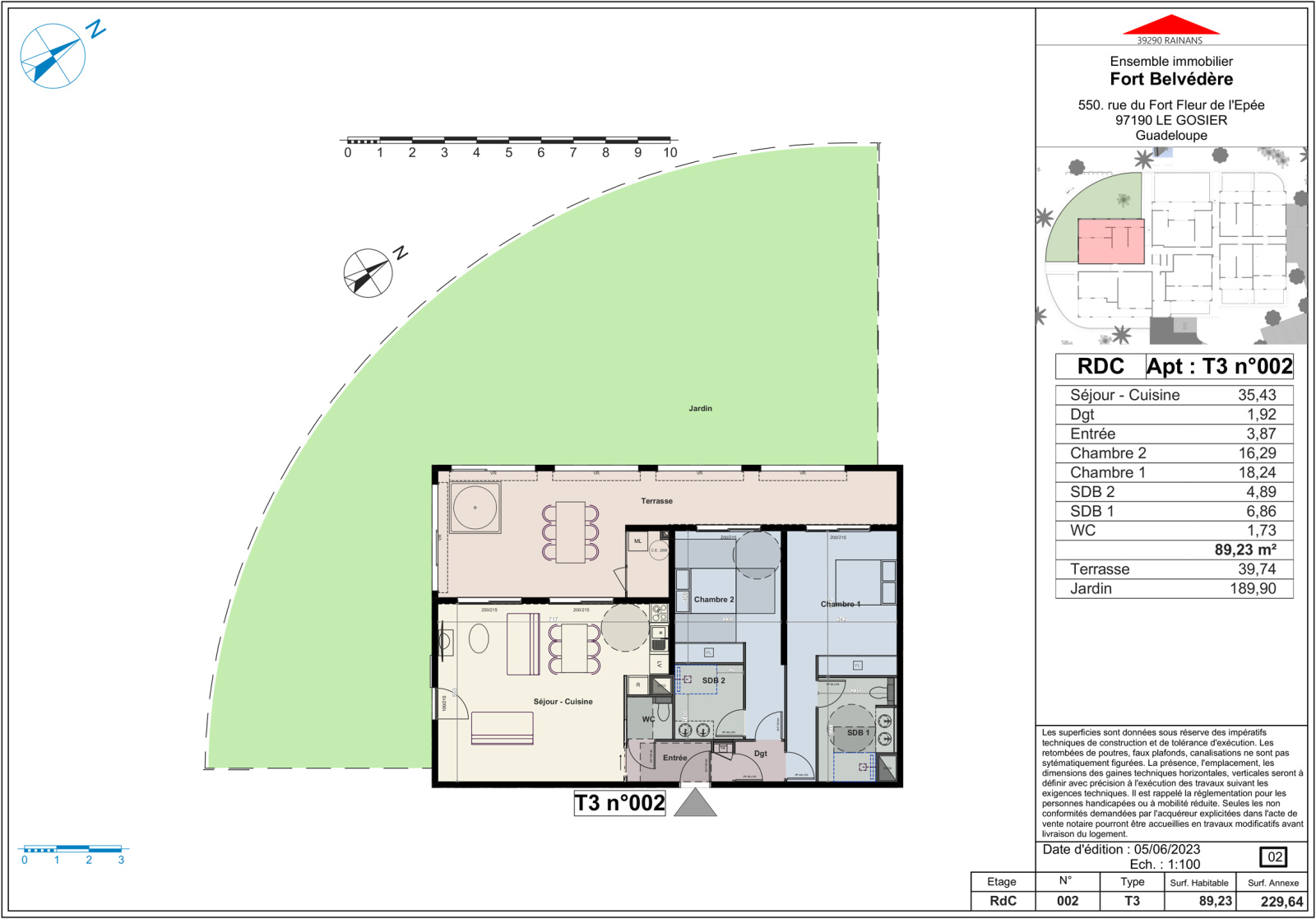
3 pièces - 89,23 m²

Bas-du-Fort - Magnifique T3 - Grande terrasse et Jardin

560 000 €
Ref : F-B_002
Découvrir le bien

À Bas-du-Fort, Le Gosier, magnifique appartement 3 pièces comportant un grand séjour lumineux, deux belles chambres avec placards intégrés, deux salles d'eau, et une large terrasse à vivre avec un grand jardin privatif.


Il est situé dans la résidence de grand standing "Fort Belvédère", un ensemble immobilier neuf qui sera livré mi-2025. Si vous souhaitez organiser une visite du site, nous nous ferons un plaisir de vous présenter cet appartement de standing.


Totalisant une surface habitable 89 m² (Carrez), l'intérieur comprend un espace nuit avec deux grandes chambres et deux salles d'eau en-suite, et un espace jour avec un séjour-cuisine lumineux de 35 m² menant à la terrasse couverte. Cet appartement se trouve au Rez-de-Jardin dans une résidence de trois niveau (deux étages), avec ascenseur. Satisfait aux normes des bâtiments label RTAADOM garantissant des économies d'énergie au quotidien.


Cette propriété s'accompagne d'une terrasse d'une surface de 39,74 m² et d'un jardin privatif de 189,90 m² pour une superficie à vivre de 318 m².

Dans le cadre de ce programme immobilier neuf, le prix s'élève à 560 000 euros.


Cet appartement est éligible aux dispositif de défiscalisation Girardin I.S., Crédit d'impôts Investissement Outremer Productif (CIOP) ou JEANBRUN.


- Contactez-nous pour recevoir gratuitement la brochure et les plans de cet appartement -





GEOLOCALISATION (redirection Google Maps) :
>> 550, Rue du Fort Fleur de l'Epée, Bas-du-Fort, Le Gosier

TRAD_ZEPHYR_Caracteristique TRAD_ZEPHYR_Valeurs
Code postal 97190
Surface loi Carrez (m²) 89,23 m²
Nombre de chambre(s) 2
Nombre de pièces 3
Nombre de niveaux 1
Ascenseur OUI
Vue Côte-au-Vent
TRAD_ZEPHYR_Caracteristique TRAD_ZEPHYR_Valeurs
Nb de salle d'eau 2
Visiophone OUI
Terrasse OUI
Sous/sol AVEC AMENAGE
Nombre de parking 1
Exposition Sud-Ouest
Année de construction 2025
Quartier Bas-du-Fort
TRAD_ZEPHYR_Caracteristique TRAD_ZEPHYR_Valeurs
Copropriété NON
plan de sauvegarde NON
statut du syndic pas de procédure en cours
TRAD_ZEPHYR_Caracteristique TRAD_ZEPHYR_Valeurs
Prix de vente 560 000 €
Les honoraires d'agence seront intégralement à la charge du vendeur  
Rez de chaussée
Séjour/Cuisine 35.43 m²

Avec deux baies vitrées coulissantes et une porte vitrée sur le jardin

chambre 18.24 m²

Avec climatisation, placard intégré et baie-vitrée coulissante (accès terrasse)

chambre 16.29 m²

Avec climatisation, placard intégré et baie-vitrée coulissante (accès terrasse)

salle d'eau 6.86 m²

Avec douche italienne, ensemble meuble et double vasques, miroir connecté, WC suspendus - revêtement muraux Italgraniti

salle d'eau 4.89 m²

Avec douche italienne, ensemble meuble double vasques, miroir connecté - revêtement muraux Italgraniti

WC 1.73 m²

Toilettes suspendues

terrasse 39.74 m²

Avec buanderie et cinq volets roulants motorisés pour la fermeture de l'intégralité de la terrasse.

jardin 189.90 m²

Jardin privatif ceinturant l'ensemble du logement

DPE GES
  • Commerces et santé
  • Loisirs
  • Ecoles
  • Transports
  • Pratique
Contacter pour ce bien
L'agence
Téléphone 0590 91 41 40
Adresse
Immeuble Le CONCERTO, Boulevard Destrellan 97122 Baie-Mahault

* Champ obligatoire

Les informations recueillies sur ce formulaire sont enregistrées dans un fichier informatisé par La Boite Immo agissant comme Sous-traitant du traitement pour la gestion de la clientèle/prospects de l'Agence / du Réseau qui reste Responsable du Traitement de vos Données personnelles. La base légale du traitement repose sur l'intérêt légitime de l'Agence / du Réseau. Elles sont conservées jusqu'à demande de suppression et sont destinées à l'Agence / au Réseau. Conformément à la loi « informatique et libertés », vous disposez des droits d’accès, de rectification, d’effacement, d’opposition, de limitation et de portabilité de vos données. Vous pouvez retirer votre consentement à tout moment en contactant directement l’Agence / Le Réseau. Consultez le site https://cnil.fr/fr pour plus d’informations sur vos droits. Si vous estimez, après avoir contacté l'Agence / le Réseau, que vos droits « Informatique et Libertés » ne sont pas respectés, vous pouvez adresser une réclamation à la CNIL. Nous vous informons de l’existence de la liste d'opposition au démarchage téléphonique « Bloctel », sur laquelle vous pouvez vous inscrire ici : https://www.bloctel.gouv.fr Dans le cadre de la protection des Données personnelles, nous vous invitons à ne pas inscrire de Données sensibles dans le champ de saisie libre.
Ce site est protégé par reCAPTCHA, les Politiques de Confidentialité et les Conditions d'Utilisation de Google s'appliquent.

Découvrir nos outils